Houses & Floor Plans - Valde Haylofts
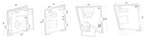
4 Living Houses
• 1 features large kitchen, living room, laundry, bathroom, two fire places
• 1 features large bedroom plus bathroom upstairs, with two beds and one bathroom downstairs, two fire places
• 2 feature double bed upstairs, bunk bed, kitchen and bathroom downstairs
The images below are the floor plans from two of the huts.
Click the image for a larger view.
